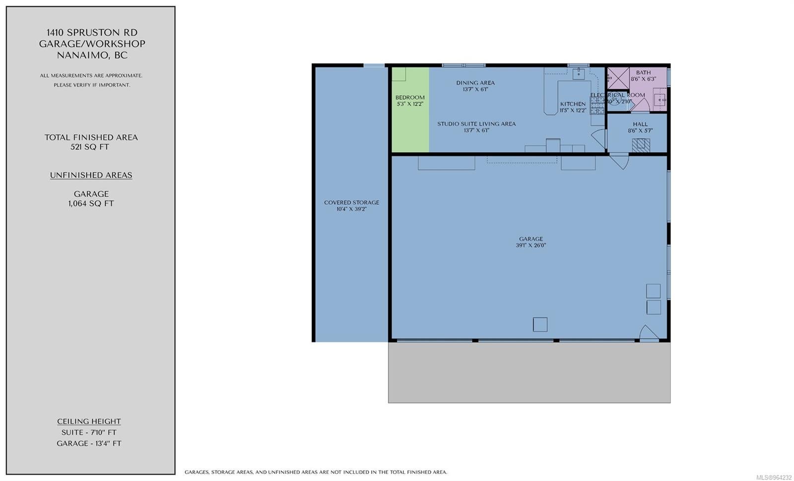
One of a kind property offering a 1551 sq.ft. 3 bedroom, 2 bathroom custom rancher, huge 3-Bay workshop (12 foot doors) with a studio suite, & a renovated mobile with great tenants in both units. Located on 0.96. acres of flat, sunny, usable land with a secure entrance gate. Inside is spacious with a vaulted, open concept eat-in kitchen/living with eating bar, oak cabinets & large island. Down the hall is the laundry room, decent sized primary bedroom with sliders to the back yard, a 5-PC soaker tub ensuite & a walk-in closet. 2 more bedrooms & a 4-piece bathroom are adjacent. Enjoy the comfort of forced air with a heat pump, & electric furnace back up & rolling home into your massive 2 car garage! More highlights of this amazing property: Covered concrete back patio, gazebo area with benches, tons of lawn for pets and kids to run and play, raised garden beds, chicken-coop, green house, & an outdoor mechanic's pit area to. Shop is 1585 sq.ft. with a metal roof, studio suite and a full kitchen, 4-piece bathroom, separate laundry, propane & wood heat. Mobile is renovated with 1 bedroom, 1 bathroom, gas stove, newer appliances, 2 decks, own laundry & hydro meter. Rural living yet close to YCD, minutes to BC Ferries & 10 minutes to downtown Nanaimo. Close to schools & on a bus route. Tenants in studio and mobile are month to month and would like to stay if possible. Showings requires minimum 1 full day notice, preferably 2 or more. Property size and home age provided by BC Assessment.
Address
1410 Spruston Rd
List Price
$1,355,000
Sold Date
31/10/2024
Property Type
Residential
Type of Dwelling
Single Family Residence
Transaction Type
Sale
Area
Nanaimo
Sub-Area
Na Extension
Bedrooms
5
Bathrooms
4
Floor Area
1,551 Sq. Ft.
Lot Size
41817 Sq. Ft.
Lot Size (Acres)
0.96 Ac.
Year Built
1991
MLS® Number
964232
Listing Brokerage
460 Realty Inc. (NA)
Basement Area
Crawl Space
Postal Code
V9X 1S8
Tax Amount
$3,017.00
Tax Year
2023
Features
Central Vacuum, Dishwasher, Eating Area, Electric, F/S/W/D, Heat Pump, Insulated Windows, Jetted Tub, Mixed, Propane Tank, Range Hood
Amenities
Acreage, Balcony/Patio, Cleared, Fenced, Fencing: Full, Garden, Gazebo, Greenhouse, Guest Accommodations, Landscaped, Near Golf Course, Private, Quiet Area, Rural Setting, Southern Exposure, Workshop
































































